공과대학 제1공학관
공과대학 제2공학관
공과대학 제3공학관
공과대학 제4공학관
공과대학 제5공학관
공과대학 제6공학관
공과대학 제7공학관
공과대학 제 8공학관 (자동차 산학 협동관)
- 센터/사업단
- 사회맞춤형산학협력선도대학육성사업단(LINC+)
- 공학교육혁신센터
- 공학교육혁신거점센터
- 반도체설계교육지역센터(IDEC)
공과대학 제9공학관
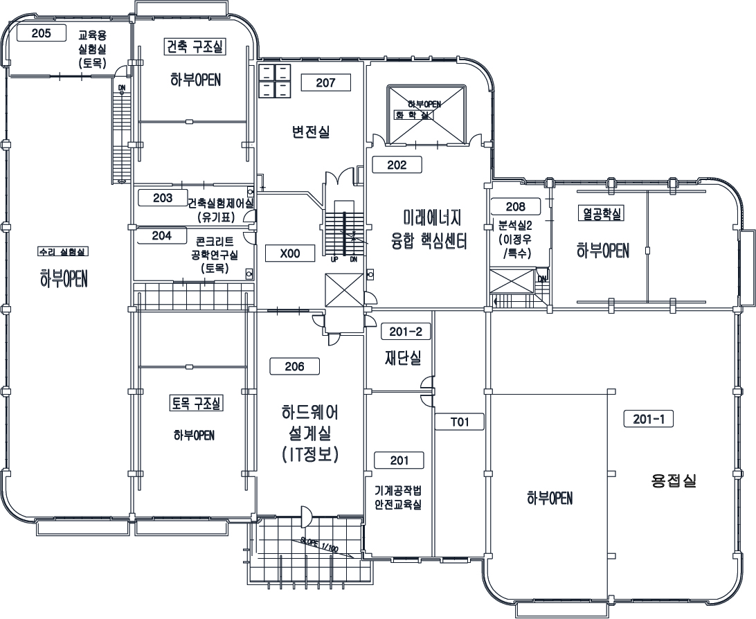
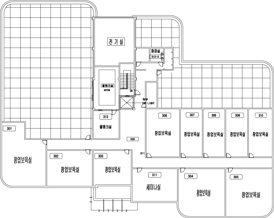
공과대학 부속공장
- 센터/사업단
- 부속공장(1층)
- 미래에너지융합핵심센터(2층)
- 창업보육2센터(3층)
대형풍동실험센터

